Flange dimensions
Flange dimensions
Dimensions of flanges drilled according to DIN
|
Dimensions of flanges with plain sealing face |
Additional dimensions for flanges with raised face |
|||||||||
|---|---|---|---|---|---|---|---|---|---|---|
|
Order No. |
Material |
Rated size DN |
Pressure rating in PN |
O D |
O k |
Number of holes |
O d2 |
b |
O d4 |
f |
|
mm |
mm |
mm |
mm |
mm |
mm |
mm |
mm |
|||
|
7MR1020 |
E/S |
15 |
25 |
95 |
65 |
4 |
14 |
16 |
45 |
2 |
|
7MR1110/111• |
E/S |
25 |
10 |
115 |
85 |
4 |
14 |
16 |
68 |
2 |
|
7MR1120 |
E |
25 |
18 |
|||||||
|
7MR1130 |
E |
40 |
||||||||
|
7MR1140 |
E |
63 |
140 |
100 |
4 |
18 |
24 |
68 |
2 |
|
|
7MR1410/141• |
E |
50 |
6 |
165 |
125 |
4 |
18 |
17 |
102 |
3 |
|
7MR1410/141• |
S |
16 |
||||||||
|
7MR1420 |
E |
25 |
20 |
|||||||
|
7MR1430 |
E |
40 |
||||||||
|
7MR1440 |
E |
63 |
180 |
135 |
4 |
22 |
26 |
– |
– |
|
|
7MR1610/161• |
E |
80 |
4 |
190 |
150 |
4 |
18 |
18 |
128 |
3 |
|
7MR1610/161• |
S |
6 |
||||||||
|
7MR1620 |
E |
25 |
200 |
160 |
8 |
18 |
22 |
138 |
3 |
|
|
7MR1630 |
E |
40 |
||||||||
Dimensions of flanges drilled according to ASME
|
Dimensions of flanges with plain sealing face |
Additional dimensions for flanges with raised face |
|||||||||
|---|---|---|---|---|---|---|---|---|---|---|
|
Order No. |
Material |
Nom. diam. |
Pressure rating in MWP |
O D |
O k |
Number of holes |
O d2 |
b |
O d4 |
f |
|
inch |
inch |
inch |
inch |
inch |
inch |
inch |
inch |
|||
|
7MR1020 |
E/S |
1/2 |
300 … 600 |
33/4 |
25/8 |
4 |
5/8 |
16 |
13/8 |
1/16 |
|
7MR1030 |
E |
|||||||||
|
7MR1110/111• |
E/S |
1 |
150 |
41/4 |
31/8 |
4 |
5/8 |
16 |
2 |
1/16 |
|
7MR1120 |
E |
300 … 600 |
47/8 |
31/2 |
4 |
3/4 |
18 |
2 |
1/16 |
|
|
7MR1130 |
E |
|||||||||
|
7MR1140 |
E |
900 … 1500 |
57/8 |
4 |
4 |
1 |
24 |
2 |
1/4 |
|
|
7MR1410/141• |
E/S |
2 |
150 |
6 |
43/4 |
4 |
3/4 |
17 |
35/8 |
1/16 |
|
7MR1420 |
E/C |
300 … 600 |
61/2 |
5 |
8 |
3/4 |
20 |
35/8 |
1/16 |
|
|
7MR1430 |
E |
|||||||||
|
7MR1440 |
E |
900 … 1500 |
81/2 |
61/2 |
8 |
1 |
26 |
35/8 |
1/4 |
|
|
7MR1610/161• |
E/S |
3 |
150 |
71/2 |
6 |
4 |
3/4 |
18 |
5 |
1/16 |
|
7MR1620 |
E |
300 … 600 |
81/4 |
65/8 |
8 |
7/8 |
22 |
5 |
1/16 |
|
|
7MR1630 |
E |
|||||||||
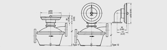
Rotary-piston meter DN 15 ( “)
Rotary-piston meter DN 15 ( “) without accessories
Rotary-piston meter DN 15 ( “) with single-pointer dial type 01, without heating device, dimensions in mm (inch)
Rotary-piston meter DN 15 ( “) with single-pointer dial type 01, with heating device, dimensions in mm (inch)
|
Rotary-piston meter with single-pointer dial type 01, (PN 25 (MWP 363 psi)) |
||
|---|---|---|
|
Dimensions |
Heating device |
|
|
With |
Without |
|
|
PN 25 (MWP 363 psi) |
PN 25 (MWP 363 psi) |
|
|
mm (inch) |
mm (inch) |
|
|
a1 |
224 (8.82) |
247 (9.72) |
|
a2 |
177 (6.97) |
200 (7.87) |
|
a3 |
140 (5.51) |
163 (6.42) |
|
c1 |
50 (1.97) |
66 (2.60) |
|
c2 |
83,5 (3.29) |
106 (4.17) |
|
g |
- |
100 (3.94) |
|
h |
- |
G |
|
hA |
37 (1.46) |
37 (1.46) |
|
l |
- |
22 (0.87) |
|
See beginning of section for flange dimensions |
||
Rotary-piston meter DN 15 ( “) with double-pointer dial type 01, dimensions in mm (inch)
Rotary-piston meter with accessories
Rotary-piston meter DN 15 ( “) with accessories
|
Rotary-piston meter DN 15 ( “) with accessories, dimensions in mm (inch) |
|
|
Design |
01 |
|
Dimension a for rotary-piston meter with 1 heat insulation attachment, dimensions in mm (inch) |
|
|
Without heating device |
|
|
336 (13:23) |
|
With heating device |
|
|
359 (14.13) |
|
361 (14.21) |
|
Dimension a for rotary-piston meter with 2 heat insulation attachments, dimensions in mm (inch) |
|
|
Without heating device |
|
|
495 (19.49) |
|
With heating device |
|
|
518 (20.39) |
|
520 (20.47) |
Rotary-piston meter DN 25 (1")
Rotary-piston meter DN 25 (1") without accessories
For pressure level PN 10 and PN 16 (MWP 145 psi and 232 psi)
Rotary-piston meter DN 25 (1“) for PN 10 and PN 16 (MWP 145 psi and 232 psi) with single-pointer dial or with quantity preset register, dimensions in mm (inch)
Rotary-piston meter DN 25 (1“) for PN 10 and PN 16 (MWP 145 psi and 232 psi) with double-pointer dial, dimensions in mm (inch)
|
Rotary-piston meter DN 25 (1“) for PN 10 and PN 16 (MWP 145 psi and 232 psi) without accessories, dimensions in mm (inch) |
|||||||||
|---|---|---|---|---|---|---|---|---|---|
|
With single-pointer dial type 01 or with double-pointer dial |
|||||||||
|
a1 |
a2 |
a3 |
c |
d1 |
e |
g |
h |
hA |
L |
|
237 (9.33) |
190 (7.48) |
153 (6.02) |
90 (3.54) |
14 (0.55) |
115 (4.53) |
155 (6.10) |
140 (5.51) |
48 (1.89) |
210 (8.27) |
|
With quantity preset register type 54 |
|||||||||
|
a2 |
a3 |
a5 |
c |
g |
h |
hA |
L |
z |
|
|
190 (7.48) |
153 (6.02) |
440 (17.32) |
90 (3.54) |
155 (6.10) |
140 (5.51) |
48 (1.89) |
210 (8.27) |
54 (2.10) for electric switch |
|
|
See beginning of section for flange dimensions |
|||||||||
For pressure level PN 25, PN 40 and PN 63 (MWP 363 psi, 580 psi and 914 psi)
Rotary-piston meter DN 25 (1“) for PN 25, PN 40 and PN 63 (MWP 363 psi, 580 psi and 914 psi) with single-pointer dial or with quantity preset register, dimensions in mm (inch)
Rotary-piston meter DN 25 (1“) for PN 25, PN 40 and PN 63 (MWP 363 psi, 580 psi and 914 psi) with double-pointer dial, dimensions in mm (inch)
|
Rotary-piston meter DN 25 (1“) for PN 25, PN 40 and PN 63 (MWP 363 psi, 580 psi and 914 psi) without accessories, dimensions in mm (inch) |
||||||||
|---|---|---|---|---|---|---|---|---|
|
With single-pointer dial type 01 or with double-pointer dial |
||||||||
|
a1 |
a2 |
a3 |
c1 |
c2 |
g |
L |
||
|
292 (11.50) |
245 (9.65) |
208 (8.19) |
80 (3.15) |
144 (5.67) |
205 (8.07) |
270 (10.63) |
|
|
308 (12.13) |
261 (10.28) |
224 (8.82) |
82 (3.23) |
157 (6.18) |
230 (9.06) |
300 (11.81) |
|
|
With quantity preset register type 54 |
||||||||
|
a2 |
a3 |
a5 |
c1 |
c2 |
g |
L |
z |
|
|
245 (9.65) |
208 (8.19) |
495 (19.48) |
80 (3.15) |
144 (5.67) |
205 (8.07) |
270 (10.63) |
54 (2.10) for electric switch |
|
261 (10.28) |
224 (8.82) |
511 (20.12) |
82 (3.23) |
157 (6.18) |
230 (9.06) |
300 (11.81) |
54 (2.10) for electric switch |
|
See beginning of section for flange dimensions |
||||||||
Rotary-piston meter DN 25 (1“) with accessories
For pressure level PN 10 and PN 16 (MWP 145 psi and 232 psi)
Rotary-piston meter DN 25 (1“) for PN 10 and PN 16 (MWP 145 psi and 232 psi) with accessories, dimensions in mm (inch)
|
Rotary-piston meter DN 25 (1“) for PN 10 and PN 16 (MWP 145 psi and 232 psi) with accessories, dimensions in mm (inch) |
|
|
Design |
01 |
|
Dimension a for rotary-piston meter with 1 heat insulation attachment |
|
|
349 (13.74) |
|
|
Dimension a for rotary-piston meter with 2 heat insulation attachments |
|
|
508 (20.00) |
|
For pressure level PN 25, 40 and 63 (MWP 363 psi, 580 psi and 914 psi)
Rotary-piston meter DN 25 (1“) for PN 25, PN 40 and PN 63 (MWP 363 psi, 580 psi and 914 psi) with accessories, dimensions in mm (inch)
|
Rotary-piston meter DN 25 (1“) for PN 25, PN 40 and PN 63 (MWP 363 psi, 580 psi and 914 psi) with accessories, dimensions in mm (inch) |
|
|
Design |
01 |
|
Dimension a for rotary-piston meter with 1 heat insulation attachment |
|
|
404 (15.91) |
|
420 (16.54) |
|
Dimension a for rotary-piston meter with 2 heat insulation attachments |
|
|
563 (22.17) |
|
579 (22.80) |
Acid-resistant rotary-piston meter DN 25 (1“)
Acid-resistant rotary-piston meter DN 25 (1“) without accessories
Acid-resistant rotary-piston meter DN 25 (1") for PN 10 (MWP 145 psi) with register or with quantity preset register; dimensions in mm (inch), see beginning of section for flange dimensions
Acid-resistant rotary-piston meter DN 25 (1") for PN 10 (MWP 145 psi) with double-pointer dial; dimensions in mm (inch), see beginning of section for flange dimensions
Acid-resistant rotary-piston meter DN 25 (1“) with accessories
Acid-resistant rotary-piston meter DN 25 (1") for PN 10 (MWP 145 psi) with accessories; dimensions in mm (inch)
|
Acid-resistant rotary-piston meter DN 25 (1") for PN 10 (MWP 145 psi) with accessories; dimensions in mm (inch) |
|
|
Design |
01 |
|
Dimension a for rotary-piston meter with 1 heat insulation attachment |
|
|
442 (17.40) |
|
|
Dimension a for rotary-piston meter with 2 heat insulation attachments |
|
|
601 (23.66) |
|
Rotary-piston meter DN 50 (2")
Rotary-piston meter DN 50 (2") without accessories
For pressure level PN 6 and PN 16 (MWP 87 psi and 232 psi)
Rotary-piston meter DN 50 (2“) for PN 6 and PN 16 (MWP 87 psi and 232 psi) with single-pointer dial or with quantity preset register, dimensions in mm (inch)
Rotary-piston meter DN 50 (2“) for PN 6 and PN 16 (MWP 87 psi and 232 psi) with double-pointer dial, dimensions in mm (inch)
|
Rotary-piston meter DN 50 (2“) for PN 6 and PN 16 (MWP 87 psi and 232 psi) without accessories, dimensions in mm (inch) |
|||||||||
|---|---|---|---|---|---|---|---|---|---|
|
With single-pointer dial type 01 or with double-pointer dial |
|||||||||
|
a1 |
a2 |
a3 |
c |
d1 |
e |
g |
h |
hA |
L |
|
289 (11.38) |
242 (9.53) |
205 (8.07) |
147 (5.79) |
18 (0.71) |
165 (6.50) |
275 (10.83) |
250 (9.84) |
75 (2.95) |
325 (12.80) |
|
With quantity preset register type 54 |
|||||||||
|
a2 |
a3 |
a5 |
c |
g |
h |
hA |
L |
z |
|
|
242 (9.53) |
205 (8.07) |
492 (19.37) |
147 (5.79) |
275 (10.83) |
250 (9.84) |
75 (2.95) |
325 (12.80) |
54 (2.10) for electric switch |
|
|
See beginning of section for flange dimensions |
|||||||||
For pressure level PN 25, PN 40 and PN 63 (MWP 363 psi, 580 psi and 914 psi)
Rotary-piston meter DN 50 (2“) for PN 25, PN 40 and PN 63 (MWP 363 psi, 580 psi and 914 psi) with single-pointer dial or with quantity preset register, dimensions in mm (inch)
Rotary-piston meter DN 50 (2“) for PN 25, PN 40 and PN 63 (MWP 363 psi, 580 psi and 914 psi) with double-pointer dial, dimensions in mm (inch)
|
Rotary-piston meter DN 50 (2“) for PN 25, PN 40 and PN 63 (MWP 363 psi, 580 psi and 914 psi) without accessories, dimensions in mm (inch) |
||||||||
|---|---|---|---|---|---|---|---|---|
|
With single-pointer dial type 01 or with double-pointer dial |
||||||||
|
a1 |
a2 |
a3 |
c1 |
c2 |
g |
L |
||
|
347 (13.66) |
300 (11.81) |
263 (10.35) |
120 (4.7) |
205 (8.1) |
330 (12.99) |
400 (15.75) |
|
|
369 (14.53) |
322 (12.68) |
285 (11.22) |
120 (4.7) |
230 (9.1) |
385 (15.16) |
470 (18.50) |
|
|
With quantity preset register type 54 |
||||||||
|
a2 |
a3 |
a5 |
c1 |
c2 |
g |
L |
z |
|
|
300 (11.8) |
263 (10.4) |
550 (21.7) |
120 (4.7) |
205 (8.1) |
330 (12.99) |
400 (15.8) |
54 (2.10) for electric switch |
|
332 (12.7) |
285 (11.2) |
572 (22.5) |
120 (4.7) |
230 (9.1) |
385 (15.2) |
400 (15.8) |
54 (2.10) for electric switch |
|
See beginning of section for flange dimensions |
||||||||
Rotary-piston meter DN 50 (2“) with accessories
For pressure level PN 6 and PN 16 (MWP 87 psi and 232 psi)
Rotary-piston meter DN 50 (2“) for PN 6 and PN 16 (MWP 87 psi and 232 psi) with accessories, dimensions in mm (inch)
|
Rotary-piston meter DN 50 (2“) for PN 6 and PN 16 (MWP 87 psi and 232 psi), dimensions in mm (inch) |
|
|
Design |
01 |
|
Dimension a for rotary-piston meter with 1 heat insulation attachment |
|
|
401 (15.79) |
|
|
Dimension a for rotary-piston meter with 2 heat insulation attachments |
|
|
560 (22.05) |
|
For pressure level PN 25, 40 and 63 (MWP 363 psi, 580 psi and 914 psi)
Rotary-piston meter DN 50 (2“) for PN 25, PN 40 and PN 63 (MWP 363 psi, 580 psi and 914 psi) with accessories, dimensions in mm (inch)
|
Rotary-piston meter DN 50 (2“) for PN 25, PN 40 and PN 63 (MWP 363 psi, 580 psi and 914 psi) with accessories, dimensions in mm (inch) |
|
|
Design |
01 |
|
Dimension a for rotary-piston meter with 1 heat insulation attachment |
|
|
459 (18.07) |
|
481 (18.94) |
|
Dimension a for rotary-piston meter with 2 heat insulation attachments |
|
|
618 (24.33) |
|
640 (25.20) |
Rotary-piston meter DN 80 (3")
Rotary-piston meter DN 80 (3") without accessories
For pressure level PN 25 and PN 40 (MWP 363 psi and 580 psi)
Rotary-piston meter DN 80 (3“) for PN 25 and PN 40 (MWP 363 psi and 580 psi) with single-pointer dial or with quantity preset register, dimensions in mm (inch)
Rotary-piston meter DN 80 (3“) for PN 25 and PN 40 (MWP 363 psi and 580 psi) with double-pointer dial, dimensions in mm (inch)
|
Rotary-piston meter DN 80 (3“) for PN 25 and PN 40 (MWP 363 psi and 580 psi) without accessories, dimensions in mm (inch) |
||||||||
|---|---|---|---|---|---|---|---|---|
|
With single-pointer dial type 01 or with double-pointer dial |
||||||||
|
a1 |
a2 |
a3 |
c1 |
c2 |
g |
L |
||
|
415 (16.34) |
368 (14.49) |
331 (13.03) |
155 (6.10) |
271 (10.67) |
450 (17.72) |
540 (21.26) |
|
|
With quantity preset register type 54 |
||||||||
|
a2 |
a3 |
a5 |
c1 |
c2 |
g |
L |
z |
|
|
368 (14.48) |
331 (13.03) |
618 (24.33) |
155 (6.10) |
271 (10.67) |
450 (17.72) |
540 (21.26) |
54 (2.10) for electric switch |
|
See beginning of section for flange dimensions |
||||||||
For pressure level PN 25, 40 and 63 (MWP 363 psi, 580 psi and 914 psi)
Rotary-piston meter DN 80 (3“) for PN 25, PN 40 and PN 63 (MWP 363 psi, 580 psi and 914 psi) with accessories, dimensions in mm (inch)
|
Rotary-piston meter DN 80 (3“) for PN 25 and PN 40 (MWP 363 psi and 580 psi) with accessories, dimensions in mm (inch) |
|
|
Design |
01 |
|
Dimension a for rotary-piston meter with 1 heat insulation attachment |
|
|
527 (20.75) |
|
Dimension a for rotary-piston meter with 2 heat insulation attachments |
|
|
686 (27.01) |


