Siemens
СРЕДСТВА ПРОМЫШЛЕННОЙ АВТОМАТИЗАЦИИ
официальный партнер Сименс
Каталог СА01 2014
архивный
(4872) 700-366
skenergo@mail.ru
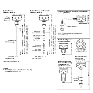
SITRANS LC 500

Конфигурации зондов

Конфигурации зондов

SITRANS LC 500 констукция зондов

Стандарт

Для разделительного слоя в емкостях хранения

Гигиенический

Типы подключения к процессу

резьбовой или приварной фланец

цельный фланец

резьбовой или приварной фланец

S серии

Резьба

Имеется

Имеется

Фланец

Имеется

Имеется

Имеется

Гигиенические зажимы


Имеется

Гигиеническая резьба


Имеется

Подключение к процессу - материалы

Нерж. сталь AISI 316L

Имеется

Имеется

Имеется

Имеется

Углеродистая сталь C22.8N

Компонентная сталь


Hastelloy1) B2 или C22

Имеется

Имеется

Monel 400

  -

Изоляция зондов

PFA

Имеется

Имеется

Имеется

Имеется

Enamel

Имеется

Параметры длины и процесса 4)

Макс. длина стержня (мм/дюймов)

Y01: 5500/216,

от 250мм

Y02: от 50 мм

Y01: 5500/216,

от 250 мм

Y02: от 50 мм

Y01: 5500/216,

от 250 мм

Y02: от 50 мм

Макс. длина кабеля (мм/дюймов)

Y01: 35000/1378,

от 250 мм

Y02: от 50 мм

Y01: 35000/1378,

от 250 мм

Y02: от 50 мм

Y01: 35000/1378,

от 250 мм

Y02: от 50 мм

Макс. давление (бар/psi)

200/2900

150/2175

5/73

10/145

 

Макс. температура (C/°F)

200/392

200/392

 

100/212

200/392

 


- Отсутствует как стандартная версия

 1) Фланец из нерж. стали AISI-316L/1.4404 с сварной платой Hastelloy, 5 мм
2) В зависимости от диапазона температур
3) В зависимости от ступени давления
+ до 400 °C (752 °F) с изоляцией зондов из Email

4) Y01 - "общая длина погружения стержня", мм

     Y02 - "длина активного экрана", мм

     Активная длина сенсора (измерительная часть) определяется как разность Y01-Y02

    Просьба указывать опции Y01 и Y02, добавляя к заказному номеру "-z"


































Каталог оборудования 2014
Каталог продуктов Siemens Industry Приводная техника Техника автоматизации Системы автоматизации Системы визуализации SIMATIC HMI Системы идентификации Промышленные коммуникации SIMATIC NET Промышленные аппараты управления SIRIUS Промышленные информационные технологии Управление на базе РС Системы управления процессом Датчики Контрольно-измерительные приборы Измерительные преобразователи для давления Датчики давления Приборы измерения температуры SITRANS T Расходомеры Уровнемеры Сигнализатор уровня Непрерывное измерение Ультразвуковой сигнализатор Компактный ультразвуковой расходомер Преобразователь ультразвукового расходомера Ультразвуковой сенсор Принадлежности для ультрзвукового уровнемера Радарный уровнемер Радарный уровнемер с направленным излучением Датчики уровня емкостные непрерывного действия SITRANS LC 300 SITRANS LC 500 Ультразвуковой контроллер Средства коммуникации Расходомеры и счетчики Позиционеры Устройство для защиты и пуска двигателей SIMOCODE-DP Сигнализаторы сбоев в промышленном процессе Дополнительные компоненты Коммуникации и программное обеспечение Аппаратные ПИД-регуляторы SIPART Встраиваемые самописцы и индикаторы Анализаторы процесса Технологии взвешивания Блоки питания Продукты для специальных требований Автоматизация и безопасность зданий Низковольтная коммутационная техника Технология безопасности Системные решения и продукты для отраслей Сервис ... и все, что Вам еще необходимо

  © ООО "СК ЭНЕРГО" 2007-2022
  (4872) 700-366  skenergo@mail.ru
Яндекс.Метрика