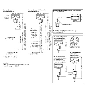
Конфигурации зондов
Конфигурации зондов
|
SITRANS LC 500 констукция зондов |
Стандарт |
Для разделительного слоя в емкостях хранения |
Гигиенический |
|
|---|---|---|---|---|
|
Типы подключения к процессу |
резьбовой или приварной фланец |
цельный фланец |
резьбовой или приварной фланец |
S серии |
|
Резьба |
Имеется |
– |
Имеется |
– |
|
Фланец |
Имеется |
Имеется |
Имеется |
– |
|
Гигиенические зажимы |
– |
– |
– |
Имеется |
|
Гигиеническая резьба |
– |
– |
– |
Имеется |
|
Подключение к процессу - материалы |
||||
|
Нерж. сталь AISI 316L |
Имеется |
Имеется |
Имеется |
Имеется |
|
Углеродистая сталь C22.8N |
– |
– |
– |
– |
|
Компонентная сталь |
– |
– |
– |
– |
|
Hastelloy1) B2 или C22 |
Имеется |
Имеется |
– |
– |
|
Monel 400 |
- |
– |
– |
– |
|
Изоляция зондов |
||||
|
PFA |
Имеется |
Имеется |
Имеется |
Имеется |
|
Enamel |
Имеется |
– |
– |
– |
|
Параметры длины и процесса 4) |
||||
|
Макс. длина стержня (мм/дюймов) |
Y01: 5500/216, от 250мм Y02: от 50 мм |
Y01: 5500/216, от 250 мм Y02: от 50 мм |
– |
Y01: 5500/216, от 250 мм Y02: от 50 мм |
|
Макс. длина кабеля (мм/дюймов) |
Y01: 35000/1378, от 250 мм Y02: от 50 мм |
Y01: 35000/1378, от 250 мм Y02: от 50 мм |
Y01: 35000/1378, от 250 мм Y02: от 50 мм |
– |
|
Макс. давление (бар/psi) |
200/2900 |
150/2175 |
5/73 |
10/145
|
|
Макс. температура (C/°F) |
200/392 |
200/392
|
100/212 |
200/392
|
- Отсутствует как стандартная версия
1) Фланец из нерж. стали AISI-316L/1.4404 с сварной платой Hastelloy, 5 мм
2) В зависимости от диапазона температур
3) В зависимости от ступени давления
+ до 400 °C (752 °F) с изоляцией зондов из Email
4) Y01 - "общая длина погружения стержня", мм
Y02 - "длина активного экрана", мм
Активная длина сенсора (измерительная часть) определяется как разность Y01-Y02
Просьба указывать опции Y01 и Y02, добавляя к заказному номеру "-z"



