Пример 3: взвешивание в процессе смешивания
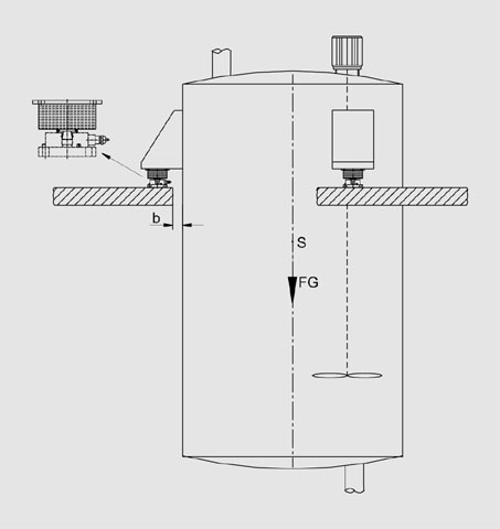
Центр тяжести S висящей емкости находится ниже уровня измерительных ячеек.
Она опирается на 3 лапки, в порожнем состоянии (собственный вес) весит 2,8 т и вмещает максимум 4,5 т.
Для улучшения смешивания отдельных компонентов в емкости установлена мешалка, работающая в процессе взвешивания.
Выбор весоизмерительных ячеек и монтажных компонентов
Предложены 3 весоизмерительных ячейки SIWAREX R серии RN с номинальной нагрузкой 3,5 т, т.к. высокоточные ячейки RN имеют достаточно небольшую высоту (номинальная нагрузка определена по методу, описанному во введении).
Емкость с мешалкой на весоизмерительной ячейке серии RN и эластомерной опоре
В качестве монтажных компонентов используются самоцентрирующиеся эластомерные опоры, чтобы минимизировать вибрацию, исходящую от мешалки.
Эластомерная опора допускает максимальный ход качания ± 4 мм.
Ограничение качания не требуется, т.к. между емкостью и платформой имеется небольшой зазор шириной b = 3 мм.
Если в конкретной ситуации ширина зазора больше, необходимо установить упоры или внешние ограничители качания (см. проект 4).
Конфигурация для взвешивания в процессе смешивания (базовая)
|
Поз. |
Описание |
№ для заказа |
Критерий выбора |
Кол-во в примере |
|---|---|---|---|---|
|
1 |
SIWAREX R серия RN, номинальная нагрузка 3,5 т, C3, без EEx |
7MH5101-4LD00 |
высококачественная кольцеторсионная весоизмерительная ячейка небольшой высоты, идеальная для взвешивания емкостей |
3 |
|
2 |
нижняя часть качающейся опоры для ячеек серии RN 2 т из нержавеющей стали |
7MH4132-4AG11 |
позволяет гасить вибрацию и тем самым минимизировать воздействие на весоизмерительную ячейку |
3 |
|
3 |
эластомерная опора для весоизмерительных ячеек серии RN 2 т из неопрена и нержавеющей стали |
7MH4130-4KE11 |
3 |
|
|
4 |
Кабель заземления |
7MH3701-1AA1 |
для отвода нежелательных токов |
3 |


