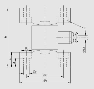
|
Номинальная нагрузка |
Oa |
Ob ±0,1 |
Oc |
d |
e |
Og |
h |
k |
s |
|---|---|---|---|---|---|---|---|---|---|
|
2,8 т, 6 т |
87 |
63 |
11 |
14 |
25 |
18 |
100 +0,5/-1 |
два отверстия 180° |
2 |
|
13 т |
97 |
73 |
11 |
21 |
32 |
18 |
120 +0,5/-1 |
2,5 |
|
|
28 т |
108 |
84 |
11 |
- |
28 |
- |
136 +0,5/-1 |
2,5 |
|
|
60 т |
137 |
112 |
11 |
- |
42 |
- |
174 +0,5/-1 |
четыре отверстия 90° |
3 |
|
130 т |
176 |
148 |
11 |
- |
52 |
- |
220 +0,5/-1 |
4 |
|
|
280 т |
226 |
190 |
14 |
- |
65 |
- |
300 +0,6/-1,2 |
6 |
Качающаяся опора для весоизмерительных ячеек SIWAREX R серии К, размеры


