Серия E
Размеры серии E
|
Модель |
A |
B |
C |
D |
E |
F |
G |
H |
J |
|---|---|---|---|---|---|---|---|---|---|
|
Серия E-40 |
686 мм (27”) |
356 мм (14”) |
254 мм (10”) |
457 мм (18”) |
610 мм (24”) |
279 мм (11”) |
25 мм (1”) |
914 мм(36”) |
457 мм |
|
Серия E-300 |
1042 мм (41”) |
457 мм (18”) |
305 мм (12”) |
610 мм (24”) |
610 мм (24”) |
330 мм (13”) |
38 мм (1.5”) |
1270 мм(50”) |
610 мм (24”) |
|
E-40, размеры впуска |
||||
|---|---|---|---|---|
|
51 мм (2”) |
102 мм |
152 мм (6”) |
203 мм (8”) |
254 мм (10”) |
|
E-300, размеры впуска |
|||||
|---|---|---|---|---|---|
|
152 мм (6”) |
203 мм (8”) |
254 мм (10”) |
305 мм (12”) |
356 мм (14”) |
406 мм (16”) |
Серия V
Размеры серии V
|
Размер |
A |
B |
C |
D |
E |
F |
G |
H |
J |
K |
|---|---|---|---|---|---|---|---|---|---|---|
|
V-40 1 |
152 мм (6”) |
686 мм (27”) |
304 мм (12”) |
254 мм (10”) |
508 мм (20”) |
457 мм (18”) |
76 мм (3”) |
203 мм (8”) |
508 мм (20”) |
254 мм (10”) |
|
V-40 2 |
254 мм (10”) |
686 мм (27”) |
304 мм (12”) |
254 мм (10”) |
508 мм (20”) |
457 мм (18”) |
102 мм (4”) |
203 мм (8”) |
508 мм (20”) |
254 мм (10”) |
|
V-40 3 |
305 мм (12”) |
686 мм (27”) |
304 мм (12”) |
254 мм (10”) |
508 мм (20”) |
457 мм (18”) |
127 мм (5”) |
203 мм |
508 мм (20”) |
254 мм (10”) |
|
V-300 1 |
406 мм (16”) |
1041 мм (41”) |
343 мм (13.5”) |
305 мм (12”) |
610 мм (24”) |
762 мм (30”) |
127 мм (5”) |
254 мм (10”) |
610 мм (24”) |
330 мм (13”) |
|
V-300 2 |
508 мм (20”) |
1041 мм (41”) |
343 мм (13.5”) |
356 мм (14”) |
711 мм (28”) |
762 мм (30”) |
152 мм (6”) |
254 мм (10”) |
610 мм (24”) |
381 мм (15”) |
Серия V: таблица производительности в зависимости от размера приемных патрубков
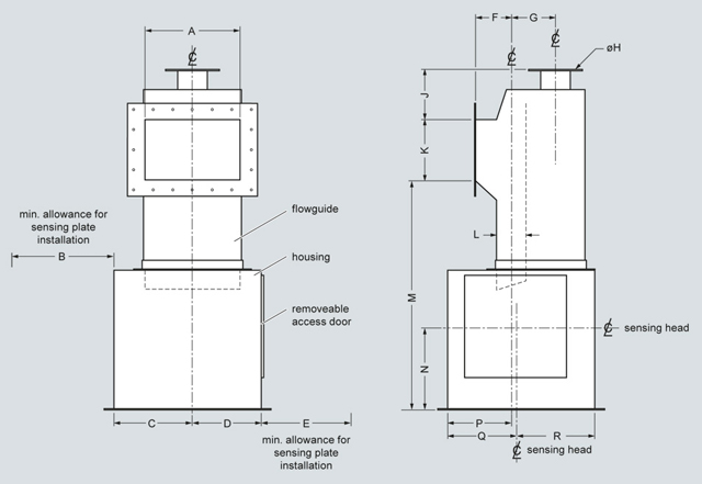
Размеры серии A
|
Размер |
A |
B |
C |
D |
E |
F |
G |
H |
|---|---|---|---|---|---|---|---|---|
|
A-40 1 |
203 мм (8”) |
686 мм (27”) |
305 мм (12”) |
254 мм (10”) |
711 мм (28”) |
127 мм (5”) |
203 мм (8”) |
102 мм (4”) |
|
A-40 2 |
305 мм (12”) |
686 мм (27”) |
305 мм (12”) |
254 мм (10”) |
711 мм (28”) |
127 мм (5”) |
203 мм (8”) |
102 мм (4”) |
|
A-300 1 |
254 мм (10”) |
1041 мм (41”) |
406 мм (16”) |
356 мм (14”) |
889 мм (35”) |
191 мм (7.5”) |
229 мм (9”) |
152 мм (6”) |
|
A-300 2 |
356 мм (14”) |
1041 мм (41”) |
406 мм (16”) |
356 мм (14”) |
889 мм (35”) |
191 мм (7.5”) |
229 мм (9”) |
152 мм (6”) |
|
A-300 3 |
508 мм (20”) |
1041 мм (41”) |
406 мм (16”) |
356 мм (14”) |
889 мм (35”) |
191 мм (7.5”) |
229 мм (9”) |
152 мм (6”) |
|
Размер |
J |
K |
L |
M |
N |
P |
Q |
R |
|---|---|---|---|---|---|---|---|---|
|
A-40 1 |
229 мм (9”) |
203 мм (8”) |
76 мм (3”) |
914 мм (36”) |
305 мм (12”) |
229 мм (9”) |
229 мм (9”) |
330 мм (13”) |
|
A-40 2 |
229 мм (9”) |
203 мм (8”) |
102 мм (4”) |
914 мм (36”) |
305 мм (12”) |
229 мм (9”) |
229 мм (9”) |
330 мм (13”) |
|
A-300 1 |
254 мм (10”) |
305 мм (12”) |
127 мм (5”) |
1168 мм (46”) |
419 мм (16.5”) |
330 мм (13”) |
356 мм (14”) |
406 мм (16”) |
|
A-300 2 |
254 мм (10”) |
305 мм (12”) |
152 мм (6”) |
1168 мм (46”) |
419 мм (16.5”) |
330 мм (13”) |
356 мм (14”) |
406 мм (16”) |
|
A-300 3 |
254 мм (10”) |
305 мм (12”) |
178 мм (7”) |
1168 мм (46”) |
419 мм (16.5”) |
330 мм (13”) |
356 мм (14”) |
406 мм (16”) |



