Siemens
СРЕДСТВА ПРОМЫШЛЕННОЙ АВТОМАТИЗАЦИИ
официальный партнер Сименс
Каталог СА01 2014
архивный
(4872) 700-366
skenergo@mail.ru
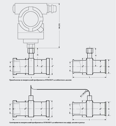
ENG: Quick-release remote seals

Connection to DIN 11851 with screw necks

DN

Ø D1

Ø D2

H

L

G1

25

38

52

68

128

Rd 52x1/6

40

55

65

74.5

160

Rd 65x1/6

50

68

78

81

170

Rd 78x1/6

65

85

95

89.5

182

Rd 95x1/6

80

110

110

97

182

Rd 110x1/4

100

130

130

107

182

Rd 110x1/4


Clamp connection for pipes to BS 4825/3 and o.D. tube

d

 

Ø D1

 

Ø D2

 

H

 

L

 

D

 

mm

(inch)

mm

(inch)

mm

(inch)

mm

(inch)

mm

(inch)

mm

(inch)

22.2

(1)

38

(1.5)

50

(1.97)

67

(2.64)

114

(4.49)

50.5

(1.98)

34.9

(1½)

43

(1.69)

65

(2.56)

74.5

(2.93)

146

(5.75)

50.5

(1.98)

47.6

(2)

56

(2.2)

75

(2.95)

79.5

(3.13)

156

(6.14)

64

(2.52)

60.3

(2½)

68

(2.68)

77

(3.03)

80.5

(3.17)

156

(6.14)

77.5

(3.05)

73.0

(3)

82

(3.23)

91

(3.58)

87.5

(3.44

156

(6.14)

91

(3.58)


Quick-release clamp-on seal, dimensions in mm (inch)


































Каталог оборудования 2014
Каталог продуктов Siemens Industry Приводная техника Техника автоматизации Системы автоматизации Системы визуализации SIMATIC HMI Системы идентификации Промышленные коммуникации SIMATIC NET Промышленные аппараты управления SIRIUS Промышленные информационные технологии Управление на базе РС Системы управления процессом Датчики Контрольно-измерительные приборы Измерительные преобразователи для давления Transmitter for rel. pressure, abs. pressure, diff. pressure, flow and level SITRANS P remote seals (HID: print) Remote seals of sandwich design Remote seals of flange design Diaphragm seal, screwed gland, direct mounting and/or with capillary Quick-release remote seals Miniature diaphragm seals Flushing rings Remote seals of flange design Quick-release remote seals Measuring setups Fittings Датчики давления Приборы измерения температуры SITRANS T Расходомеры Уровнемеры Расходомеры и счетчики Позиционеры Устройство для защиты и пуска двигателей SIMOCODE-DP Сигнализаторы сбоев в промышленном процессе Дополнительные компоненты Коммуникации и программное обеспечение Аппаратные ПИД-регуляторы SIPART Встраиваемые самописцы и индикаторы Анализаторы процесса Технологии взвешивания Блоки питания Продукты для специальных требований Автоматизация и безопасность зданий Низковольтная коммутационная техника Технология безопасности Системные решения и продукты для отраслей Сервис ... и все, что Вам еще необходимо

  © ООО "СК ЭНЕРГО" 2007-2022
  (4872) 700-366  skenergo@mail.ru
Яндекс.Метрика