|
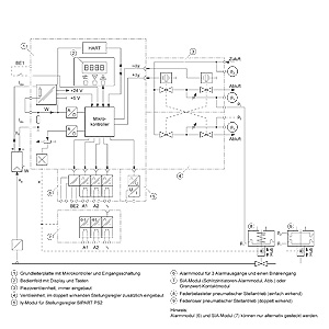
Электропневматический позиционер SIPART PS2 кардинально отличается от обычно работающих приборов. Принцип работыСравнение заданной и действительной величин позиции привода осуществляется электронно в микроконтроллере. При фиксации микроконтроллером отклонения регулируемой величины он управляет пьезовентилями по методу 5-ти позиционного выключателя, через которые происходит дозировка воздуха в камеры пневматического привода. В соответствии с величиной и направлением рассогласования (отклонение заданное значение w - управляющее воздействие x) микроконтроллер подает на соответствующий пьезовентиль электрическую управляющую команду. Пьезовентиль преобразует управляющую команду в пневматическое приращение управляющего воздействия. При этом позиционер в зоне большого рассогласования (зона быстрого хода) подает непрерывный сигнал; в пределах зоны среднего рассогласования (зона меделенного хода) он подает последовательности импульсов, а в пределах зоны очень маленького рассогласования (адаптивная или настраиваемая мертвая зона) он не подает перестановочных импульсов. Позиционер SIPART PS2 с помощью навесного блока для поступательных и поворотных приводов устанавливается на соответствующий пневматический привод. Поступательные или поворотные движения исполнительного привода фиксируются навесным блоком и через вал и беззазорную зубчатую передачу передается на высококачественный потенциометр. Угловая погрешность ползунка при установке на поступательные приводы автоматически исправляется. При подсоединении в двухпроводную схему SIPART PS2 получает свою вспомогательную энергию из 4 до 20мА сигнала заданной величины. Также и в режиме с PROFIBUS (SIPART PS2 PA) электрическая подача вспомогательной энергии осуществляется через двухпроводный шинный сигнал. Это же относится и к варианту с Foundation Fieldbus. Пневматический вентильный блок с предварительным пьезоуправлением вентилямиПьезовентиль может подавать очень короткие перестановочные импульсы. Благодаря этому достигается высокая точность перестановки. Элементом предварительного управления является пьзопреобразователь, он включает главный пневматический блок управления. Вентильный блок характеризуется очень длительным сроком службы. Управление на местеУправление на месте осуществляется через встроенный ЖКД и три клавиши управления. Нажатием кнопки можно переключаться между автоматическим, ручным и режимом конфигурирования. В ручном режиме возможна перестановка привода во всем диапазоне. Управление и наблюдение с помощью коммуникационной программы SIMATIC PDMКоммуникационное программное обеспечение SIMATIC PDM обеспечивает возможность удобного дистанционного управления и наблюдения через РС или ноутбук. Кроме этого с помощью этой программы можно конфигурировать позиционер. На основепроцессуальных и сравнительных данных вычисляются параметры, которые могут давать важные указания для технического обслуживания и диагностики ошибок всей арматуры. Для коммуникации как через интерфейс HART, так и для PROFIBUS-PA-интерфейса поставляется программа SIMATIC PDM. При работе SIPART PS2 через интерфейс HART подключение осуществляется через вставляемый в интерфейс PC-COM модем HART напрямую через 2-х проводный кабель на позиционер SIPART PS2. Необходимые для коммуникации по HART-протоколу сигналы накладываются на сигнал тока по частотно-коммутационному методу (Frequence Shift Keying, FSK). Автоматический ввод в эксплуатациюБлагодаря простому меню конфигурирования возможно быстрое согласование SIPART PS2 с арматурой и компенсация через автоматическую функцию ввода в эксплуатацию. При инициализации микроконтроллер вычисляет нулевую точку, конечную величину, направление действия и скорость перестановки привода. Исходя из этого он определяет минимальную длительность импульса и мертвую зону и тем самым оптимизирует регулирование. Малый расход воздухаОтличительным свойством SIPART PS2 является очень маленький собственный расход воздуха. Свойственные для обычных преобразователей потери воздуха означают большие затраты. Благодаря современной пьезотехнологии SIPART PS2 расходует воздух только при работе, благодаря чему его амортизация значительно сокращается. Обширные диагностические функцииSIPART PS2 (6DR5...) имеет различные функции контроля, благодяря чему возможна регистрация и сигнализация изменений на приводе и вентиле в том случае, когда они выходят за устанавливаемую предельную величину. Эта информация может содержать важные указания по диагностике привода и вентиля. К получаемым и контролируемым параметрам измерения, предельные величины которых могут частично устанавливаться, среди прочего относятся:
КонфигурированиеДля позиционера SIPART PS2 в режиме конфигурирования при необходимости, например, могут быть структурированы следующие установки:
Конфигурирование вариантов SIPART PS2 является идентичным в базовых пунктах. Электропневматический позиционер SIPART PS2, схема работы |
| Каталог 2018 | Каталог 2017 | Каталог 2016 | Каталог 2015 | Каталог 2014 | Каталог 2013 | Каталог 2012 | Сертификат | Контакты | Карта сайта | Поиск |



