Siemens
СРЕДСТВА ПРОМЫШЛЕННОЙ АВТОМАТИЗАЦИИ
официальный партнер Сименс
Каталог СА01 2014
архивный
(4872) 700-366
skenergo@mail.ru
75 кВт - 1200 кВт
от 380 V до 480 V, от 110 kW до 132 kW
от 660 V до 690 V, от 75 kW до 132 kW

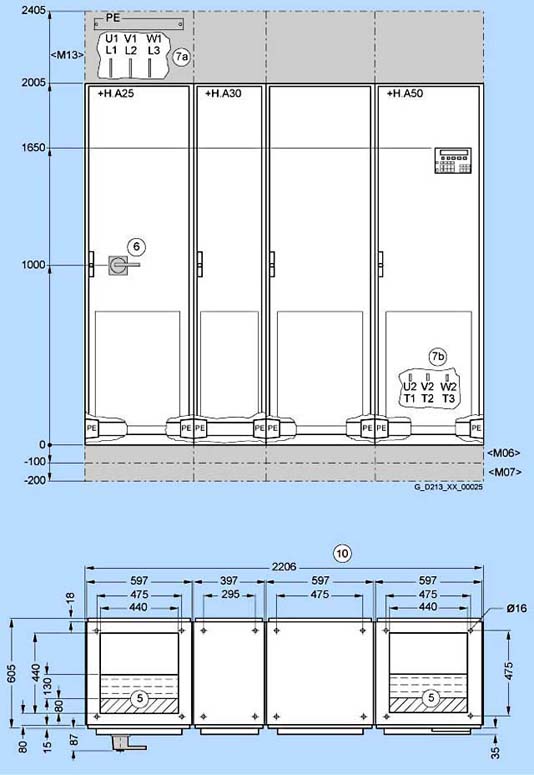
Ввод подключён снизу, 
Двигатель подключен снизу

 

Степени защиты

 

Обозначения

  • (1) Минимальная  высота потолка при настенной установке
  • (2) Вентиляционная решетка 
  • (3) Зона выхода воздуха
  • (4) Зона входа воздуха
  • (5) Ввод кабеля возможен в пределах затемнённой области
  • (6) Главный выключатель (см опцию L26)
  • (7) Силовое подключение (7a: источник питания, 7b: мотор)
  • (8) Опции степеней защиты
  • (9) Степени защиты IP20
    • IP21 опция  M21
    • IP23 опция  M23
    • IP54 опция  M54
  • (10) Транспортировочное устройство

Опции показаны на сером фоне.

 

 

от 380 V до 480 V, от 110 kW до 132 kW
от 660 V до 690 V, от 75 kW до 132 kW

Ввод питания сверху (опция  M13),
Двигатель подключен сверху

 

Степени защиты

 

Обозначения

  • (1) Минимальная  высота потолка при настенной установке
  • (2) Вентиляционная решетка 
  • (3) Зона выхода воздуха
  • (4) Зона входа воздуха
  • (5) Ввод кабеля возможен в пределах затемнённой области
  • (6) Главный выключатель (см опцию L26)
  • (7) Силовое подключение (7a: источник питания, 7b: мотор)
  • (8) Опции степеней защиты
  • (9) Степени защиты
    • IP21 опция  M21
    • IP23 опция  M23
    • IP54 опция  M54
  • (10) Транспортировочное устройство

Опции показаны на сером фоне.

 

 

от 380 V до 480 V, от 110 kW до 132 kW
от 660 V до 690 V, от 75 kW до 132 kW

Ввод питания сверху (опция M13),
Двигатель подключен снизу

 

Степени защиты

 

 

Обозначения

  • (1) Минимальная  высота потолка при настенной установке
  • (2) Вентиляционная решетка 
  • (3) Зона выхода воздуха
  • (4) Зона входа воздуха
  • (5) Ввод кабеля возможен в пределах затемнённой области
  • (6) Главный выключатель (см опцию L26)
  • (7) Силовое подключение (7a: источник питания, 7b: мотор)
  • (8) Опции степеней защиты
  • (9) Степени защиты
    • IP21
    • IP23 опция  M23
    • IP54 опция  M54
  • (10) Транспортировочное устройство

Опции показаны на сером фоне.

 

 

от 380 V до 480 V, от 110 kW до 132 kW
от 660 V до 690 V, от 75 kW до 132 kW

Ввод питания снизу,
Двигатель подключен сверху (опция M78)

 

Степени защиты

 

Обозначения

  • (1) Минимальная  высота потолка при настенной установке
  • (2) Вентиляционная решетка 
  • (3) Зона выхода воздуха
  • (4) Зона входа воздуха
  • (5) Ввод кабеля возможен в пределах затемнённой области
  • (6) Главный выключатель (см опцию L26)
  • (7) Силовое подключение (7a: источник питания, 7b: мотор)
  • (8) Опции степеней защиты
  • (9) Степени защиты
    • IP21
    • IP23 опция  M23
    • IP54 опция  M54
  • (10) Транспортировочное устройство

Опции показаны на сером фоне.

 

 

от 380 V до 480 V, 160 kW
от 660 V до 690 V, от 160 kW до 315 kW

Ввод питания снизу,
Двигатель подключен снизу

 

Степени защиты

 

Обозначения

  • (1) Минимальная  высота потолка при настенной установке
  • (2) Вентиляционная решетка 
  • (3) Зона выхода воздуха
  • (4) Зона входа воздуха
  • (5) Ввод кабеля возможен в пределах затемнённой области
  • (6) Главный выключатель (см опцию L26)
  • (7) Силовое подключение (7a: источник питания, 7b: мотор)
  • (8) Опции степеней защиты
  • (9) Степени защиты
    • IP20
    • IP21 опция М21
    • IP23 опция  M23
    • IP54 опция  M54
  • (10) Транспортировочное устройство

Опции показаны на сером фоне.

 

 

380 V to 480 V, 160 kW
660 V to 690 V, 160 kW to 315 kW

Ввод питания сверху (опция M13),

Двигатель подключен сверху (опция M78)

 

Степени защиты

 

Обозначения

  • (1) Минимальная  высота потолка при настенной установке
  • (2) Вентиляционная решетка 
  • (3) Зона выхода воздуха
  • (4) Зона входа воздуха
  • (5) Ввод кабеля возможен в пределах затемнённой области
  • (6) Главный выключатель (см опцию L26)
  • (7) Силовое подключение (7a: источник питания, 7b: мотор)
  • (8) Опции степеней защиты
  • (9) Степени защиты
    • IP21
    • IP23 опция  M23
    • IP54 опция  M54
  • (10) Транспортировочное устройство

Опции показаны на сером фоне.

 

 

от 380 V до 480 V, 160 kW
от 660 V до 690 V, от 160 kW до 315 kW

Ввод питания сверху (опция M13),
Двигатель подключен снизу

 

 

Степени защиты

Обозначения

  • (1) Минимальная  высота потолка при настенной установке
  • (2) Вентиляционная решетка 
  • (3) Зона выхода воздуха
  • (4) Зона входа воздуха
  • (5) Ввод кабеля возможен в пределах затемнённой области
  • (6) Главный выключатель (см опцию L26)
  • (7) Силовое подключение (7a: источник питания, 7b: мотор)
  • (8) Опции степеней защиты
  • (9) Степени защиты
    • IP21
    • IP23 опция  M23
    • IP54 опция  M54
  • (10) Транспортировочное устройство

Опции показаны на сером фоне.

 

 

 

от 380 V до 480 V, 160 kW
от 660 V до 690 V, от 160 kW до 315 kW

Ввод питания снизу,
Двигатель подключен сверху (опция M78)

 

Степени защиты

 

Обозначения

  • (1) Минимальная  высота потолка при настенной установке
  • (2) Вентиляционная решетка 
  • (3) Зона выхода воздуха
  • (4) Зона входа воздуха
  • (5) Ввод кабеля возможен в пределах затемнённой области
  • (6) Главный выключатель (см опцию L26)
  • (7) Силовое подключение (7a: источник питания, 7b: мотор)
  • (8) Опции степеней защиты
  • (9) Степени защиты
    • IP21
    • IP23 опция  M23
    • IP54 опция  M54
  • (10) Транспортировочное устройство

Опции показаны на сером фоне.

 

 

 

от 380 V до 480 V, от 200 kW до 250 kW

Ввод питания снизу,
Двигатель подключен снизу

 

Степени защиты

Обозначения

  • (1) Минимальная  высота потолка при настенной установке
  • (2) Вентиляционная решетка 
  • (3) Зона выхода воздуха
  • (4) Зона входа воздуха
  • (5) Ввод кабеля возможен в пределах затемнённой области
  • (6) Главный выключатель (см опцию L26)
  • (7) Силовое подключение (7a: источник питания, 7b: мотор)
  • (8) Опции степеней защиты
  • (9) Степени защиты
    • IP20
    • IP21 опция М21
    • IP23 опция  M23
    • IP54 опция  M54
  • (10) Транспортировочное устройство

Опции показаны на сером фоне.

 

 

от 380 V до 480 V, от 200 kW до 250 kW

Ввод питания сверху (опция M13),
Двигатель подключен сверху (опция M78)

 

Степени защиты

 

Обозначения

  • (1) Минимальная  высота потолка при настенной установке
  • (2) Вентиляционная решетка 
  • (3) Зона выхода воздуха
  • (4) Зона входа воздуха
  • (5) Ввод кабеля возможен в пределах затемнённой области
  • (6) Главный выключатель (см опцию L26)
  • (7) Силовое подключение (7a: источник питания, 7b: мотор)
  • (8) Опции степеней защиты
  • (9) Степени защиты
    • IP21
    • IP23 опция  M23
    • IP54 опция  M54
  • (10) Транспортировочное устройство

Опции показаны на сером фоне.

 

 

 

от 380 V до 480 V, от 200 kW до 250 kW

Ввод питания сверху (опция M13),
Двигатель подключен снизу

 

Степени защиты

Обозначения

  • (1) Минимальная  высота потолка при настенной установке
  • (2) Вентиляционная решетка 
  • (3) Зона выхода воздуха
  • (4) Зона входа воздуха
  • (5) Ввод кабеля возможен в пределах затемнённой области
  • (6) Главный выключатель (см опцию L26)
  • (7) Силовое подключение (7a: источник питания, 7b: мотор)
  • (8) Опции степеней защиты
  • (9) Степени защиты
    • IP21
    • IP23 опция  M23
    • IP54 опция  M54
  • (10) Транспортировочное устройство

Опции показаны на сером фоне.

 

 

 

от 380 V до 480 V, от 200 kW до 250 kW

Ввод питания снизу,
Двигатель подключен сверху (опция M78)

 

Степени защиты

Обозначения

  • (1) Минимальная  высота потолка при настенной установке
  • (2) Вентиляционная решетка 
  • (3) Зона выхода воздуха
  • (4) Зона входа воздуха
  • (5) Ввод кабеля возможен в пределах затемнённой области
  • (6) Главный выключатель (см опцию L26)
  • (7) Силовое подключение (7a: источник питания, 7b: мотор)
  • (8) Опции степеней защиты
  • (9) Степени защиты
    • IP21
    • IP23 опция  M23
    • IP54 опция  M54
  • (10) Транспортировочное устройство

Опции показаны на сером фоне.

 

 

от 380 V до 480 V, от 315 kW до 450 kW
от 660 V до 690 V, от 400 kW до 560 kW

Ввод питания снизу,
Двигатель подключен снизу

 

Степени защиты

 

Обозначения

  • (1) Минимальная  высота потолка при настенной установке
  • (2) Вентиляционная решетка 
  • (3) Зона выхода воздуха
  • (4) Зона входа воздуха
  • (5) Ввод кабеля возможен в пределах затемнённой области
  • (6) Главный выключатель (см опцию L26)
  • (7) Силовое подключение (7a: источник питания, 7b: мотор)
  • (8) Опции степеней защиты
  • (9) Степени защиты
    • IP20
    • IP21 опция М21 
    • IP23 опция  M23
    • IP54 опция  M54
  • (10) Транспортировочное устройство

Опции показаны на сером фоне.

 

 

 

от 380 V до 480 V, от 315 kW до 450 kW
от 660 V до 690 V, от 400 kW до 560 kW

Ввод питания сверху (опция M13),
Двигатель подключен сверху (опция M78)

 

Степени защиты

 

Обозначения

  • (1) Минимальная  высота потолка при настенной установке
  • (2) Вентиляционная решетка 
  • (3) Зона выхода воздуха
  • (4) Зона входа воздуха
  • (5) Ввод кабеля возможен в пределах затемнённой области
  • (6) Главный выключатель (см опцию L26)
  • (7) Силовое подключение (7a: источник питания, 7b: мотор)
  • (8) Опции степеней защиты
  • (9) Степени защиты
    • IP21
    • IP23 опция  M23
    • IP54 опция  M54
  • (10) Транспортировочное устройство

Опции показаны на сером фоне.

 

 

от 380 V до 480 V, от 315 kW до 450 kW
от 660 V до 690 V, от 400 kW до 560 kW

Ввод питания сверху (опция M13),
Двигатель подключен снизу

 

Степени защиты

Обозначения

  • (1) Минимальная  высота потолка при настенной установке
  • (2) Вентиляционная решетка 
  • (3) Зона выхода воздуха
  • (4) Зона входа воздуха
  • (5) Ввод кабеля возможен в пределах затемнённой области
  • (6) Главный выключатель (см опцию L26)
  • (7) Силовое подключение (7a: источник питания, 7b: мотор)
  • (8) Опции степеней защиты
  • (9) Степени защиты
    • IP21
    • IP23 опция  M23
    • IP54 опция  M54
  • (10) Транспортировочное устройство

Опции показаны на сером фоне.

 

 

 

от 380 V до 480 V, от 315 kW до 450 kW
от 660 V до 690 V, от 400 kW до 560 kW

Ввод питания снизу,
Двигатель подключен сверху (опция M78)

 

Степени защиты

Обозначения

  • (1) Минимальная  высота потолка при настенной установке
  • (2) Вентиляционная решетка 
  • (3) Зона выхода воздуха
  • (4) Зона входа воздуха
  • (5) Ввод кабеля возможен в пределах затемнённой области
  • (6) Главный выключатель (см опцию L26)
  • (7) Силовое подключение (7a: источник питания, 7b: мотор)
  • (8) Опции степеней защиты
  • (9) Степени защиты
    • IP21
    • IP23 опция  M23
    • IP54 опция  M54
  • (10) Транспортировочное устройство

Опции показаны на сером фоне.

 

 

 

от 380 V до 480 V, от 560 kW до 800 kW
от 660 V до 690 V, от 710 kW до 1200 kW

Ввод питания снизу,
Двигатель подключен снизу

 

Степени защиты

Обозначения

  • (1) Минимальная  высота потолка при настенной установке
  • (2) Вентиляционная решетка 
  • (3) Зона выхода воздуха
  • (4) Зона входа воздуха
  • (5) Ввод кабеля возможен в пределах затемнённой области
  • (6) Главный выключатель (см опцию L26)
  • (7) Силовое подключение (7a: источник питания, 7b: мотор)
  • (8) Опции степеней защиты
  • (9) Степени защиты
    • IP20
    • IP21 опция М21
    • IP23 опция  M23
    • IP54 опция  M54
  • (10) Транспортировочное устройство

Опции показаны на сером фоне.

 

 

от 380 V до 480 V, от 560 kW до 800 kW
от 660 V до 690 V, от 710 kW до 1200 kW

Ввод питания сверху (опция M13),
Двигатель подключен сверху (опция M78)

 

Степени защиты

Обозначения

  • (1) Минимальная  высота потолка при настенной установке
  • (2) Вентиляционная решетка 
  • (3) Зона выхода воздуха
  • (4) Зона входа воздуха
  • (5) Ввод кабеля возможен в пределах затемнённой области
  • (6) Главный выключатель (см опцию L26)
  • (7) Силовое подключение (7a: источник питания, 7b: мотор)
  • (8) Опции степеней защиты
  • (9) Степени защиты
    • IP21
    • IP23 опция  M23
    • IP54 опция  M54
  • (10) Транспортировочное устройство

Опции показаны на сером фоне.

 

 

 

от 380 V до 480 V, от 560 kW до 800 kW
от 660 V до 690 V, от 710 kW до 1200 kW

Ввод питания сверху (опция M13),
Двигатель подключен снизу

 

Степени защиты

 

Обозначения

  • (1) Минимальная  высота потолка при настенной установке
  • (2) Вентиляционная решетка 
  • (3) Зона выхода воздуха
  • (4) Зона входа воздуха
  • (5) Ввод кабеля возможен в пределах затемнённой области
  • (6) Главный выключатель (см опцию L26)
  • (7) Силовое подключение (7a: источник питания, 7b: мотор)
  • (8) Опции степеней защиты
  • (9) Степени защиты
    • IP21
    • IP23 опция  M23
    • IP54 опция  M54
  • (10) Транспортировочное устройство

Опции показаны на сером фоне.

 

 

от 380 V до 480 V, от 560 kW до 800 kW
от 660 V до 690 V, от 710 kW до 1200 kW

Ввод питания сверху (опция M13),
Двигатель подключен сверху (опция M78)

 

Степени защиты

 

Обозначения

  • (1) Минимальная  высота потолка при настенной установке
  • (2) Вентиляционная решетка 
  • (3) Зона выхода воздуха
  • (4) Зона входа воздуха
  • (5) Ввод кабеля возможен в пределах затемнённой области
  • (6) Главный выключатель (см опцию L26)
  • (7) Силовое подключение (7a: источник питания, 7b: мотор)
  • (8) Опции степеней защиты
  • (9) Степени защиты
    • IP21
    • IP23 опция  M23
    • IP54 опция  M54
  • (10) Транспортировочное устройство

Опции показаны на сером фоне.

 

 

Механические параметры подключения

В последующей таблице указаны рекомендуемые или максимальные допустимые подключения кабелей питания и кабелей двигателя.

Рекомендованные сечения приведены для указанных в спецификации предохранителей, для одного трехпроводного кабеля и температуре окружающей среды 40 °C

В случае других условий (маршрута прокладки, укладки и вязки кабелей, температура окружающей среды), должна быть проведена инженерная проработка задачи.

Мощность

Преобразователь  

Вес

Подключение питания

Подключение двигателя  

Заземление шкафа

при 400 V или 690 V

при 460 V (60 Гц)

 

(стандартная версия)

Рекомендуемое сечение

Максимальное сечение

Установочный винт

M12

Рекомендуемое сечение

Максимальное сечение

Установочный винт

M12

Установочный винт

M12

Примечания  

кВт  

л.с.

Тип
6SL3710‑ ...

кг

DIN VDE

мм  2

AWG/ MCM

DIN VDE

мм  2

AWG/ MCM

(Кол-во отверстий)

DIN VDE

мм  2

AWG/ MCM

DIN VDE

мм  2

AWG/ MCM

(Кол-во отверстий)

(Кол-во отверстий)

 

от 380 V до 480 V

110

150

‑7LE32‑1AA0

708

2x70

2x(000)

4x240

4x600

(2)

2x70

2x(000)

2x150

2x(400)

(2)

(2)

 

132

200

-7LE32-6AA0

708

2x95

2x(4/0)

4x240

4x600

(2)

2x95

2x(4/0)

2x150

2x(400)

(2)

(2)

 

160

250

-7LE33-1AA0

892

2x120

2x(300)

4x240

4x600

(2)

2x120

2x(300)

2x150

2x(400)

(2)

(2)

 

200

300

-7LE33-8AA0

980

2x120

2x(300)

4x240

4x600

(2)

2x120

2x(300)

2x150

2x(400)

(2)

(2)

 

250

400

-7LE35-0AA0

980

2x185

2x(500)

4x240

4x600

(2)

2x185

2x(500)

2x240

2x600

(2)

(2)

 

315

500

-7LE36-1AA0

1716

2x240

2x(600)

4x240

4x600

(2)

2x240

2x600

4x240

4x600

(2)

(2)

 

400

600

-7LE37-5AA0

1731

2x300

2x(800)

4x240

4x600

(2)

2x300

2x(800)

4x240

4x600

(2)

(10)

Медная шина

450

700

-7LE38-4AA0

1778

4x150

4x(400)

8x240

8x600

(4)

4x150

4x(400)

4x240

4x600

(2)

(16)

Медная шина

560

800

-7LE41-0AA0

2408

4x185

4x(500)

8x240

8x600

(4)

4x185

4x(500)

6x240

6x600

(3)

(18)

Медная шина

710

900

-7LE41-2AA0

2408

4x240

4x600

8x240

8x600

(4)

4x240

4x600

6x240

6x600

(3)

(18)

Медная шина

800

1000

-7LE41-4AA0

2408

6x185

6x(500)

8x240

8x600

(4)

6x185

6x(500)

6x240

6x600

(3)

(18)

Медная шина

от 660 V до 690 V

75

-

‑7LH28‑5AA0

708

50

(00)

4x240

4x600

(2)

50

(00)

2x70

2x(000)

(2)

(2)

 

90

-

-7LH31-0AA0

708

50

(00)

4x240

4x600

(2)

50

(00)

2x150

2x(400)

(2)

(2)

 

110

-

-7LH31-2AA0

708

70

(000)

4x240

4x600

(2)

70

(000)

2x150

2x(400)

(2)

(2)

 

132

-

-7LH31-5AA0

708

95

(4/0)

4x240

4x600

(2)

95

(4/0)

2x150

2x(400)

(2)

(2)

 

160

-

-7LH31-8AA0

892

120

(300)

4x240

4x600

(2)

120

(300)

2x150

2x(400)

(2)

(2)

 

200

-

-7LH32-2AA0

892

2x70

2x(000)

4x240

4x600

(2)

2x70

2x(000)

2x150

2x(400)

(2)

(2)

 

250

-

-7LH32-6AA0

892

2x95

2x(4/0)

4x240

4x600

(2)

2x95

2x(4/0)

2x185

2x(500)

(2)

(2)

 

315

-

-7LH33-3AA0

892

2x120

2x(300)

4x240

4x600

(2)

2x120

2x(300)

2x240

2x(600)

(2)

(2)

 

400

-

-7LH34-1AA0

1716

2x185

2x(500)

4x240

4x600

(2)

2x185

2x(500)

4x240

4x600

(2)

(2)

 

450

-

-7LH34-7AA0

1716

2x185

2x(500)

4x240

4x600

(2)

2x185

2x(500)

4x240

4x600

(2)

(2)

 

560

-

-7LH35-8AA0

1716

2x240

2x(600)

4x240

4x600

(2)

2x240

2x(600)

4x240

4x600

(2)

(2)

 

710

-

-7LH37-4AA0

2300

3x185

3x(500)

8x240

8x600

(4)

3x185

3x(500)

6x240

6x600

(3)

(18)

Медная шина

800

-

-7LH38-1AA0

2408

4x150

4x(400)

8x240

8x600

(4)

4x150

4x(400)

6x240

6x600

(3)

(18)

Медная шина

900

-

-7LH38-8AA0

2408

4x150

4x(400)

8x240

8x600

(4)

4x150

4x(400)

6x240

6x600

(3)

(18)

Медная шина

1000

-

-7LH41-0AA0

2408

4x185

4x(500)

8x240

8x600

(4)

4x185

4x(500)

6x240

6x600

(3)

(18)

Медная шина

1200

-

-7LH41-3AA0

2408

4x240

4x600

8x240

8x600

(4)

4x240

4x600

6x240

6x600

(3)

(18)

Медная шина


 


































Каталог оборудования 2014

  © ООО "СК ЭНЕРГО" 2007-2022
  (4872) 700-366  skenergo@mail.ru
Яндекс.Метрика