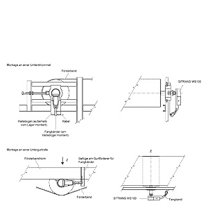
В датчике скорости SITRANS WS100 входной вал крепится к вращающемуся валу шкива (барабана), приводимому в действие лентой конвейера, с помощью резьбового соединения либо магнитного крепления. Входной вал является также опорой для корпуса датчика, не имеющего крепления к неподвижным элементам конструкции. Гибкий тормозной ремень не позволяет датчику вращаться вместе со шкивом, при этом не вызывая перегрузки подшипника, и может крепиться к любому жёсткому элементу конструкции конвейера вблизи датчика.
При монтаже убедитесь в концентричности осей датчика и шкива, чтобы избежать перегрузки подшипника.
При монтаже на магнитный держатель убедитесь, что плоскость шкива ровная и не имеет заусенцев и повреждений, мешающих плотному прилеганию магнитного крепления. Присоедините датчик скорости SITRANS WS100 к валу; магнитный держатель отцентрируется автоматически по мере вращения шкива.
Монтаж WS100


