Кольцевой счетчик DN 25 (1") без доп. модулей
Для ступени давления PN 10 и PN 16 (MWP 145 psi и 232 psi)
Кольцевой счетчик DN 25 для PN 10 и PN 16 (MWP 145 psi и 232 psi) с простым стрелочным механизмом. С установочным механизмом кол-ва, размеры в мм (дюймах)
Кольцевой счетчик DN 25 для PN 10 и PN 16 (MWP 145 psi и 232 psi) с двойным стрелочным механизмом, размеры в мм (дюймах)
|
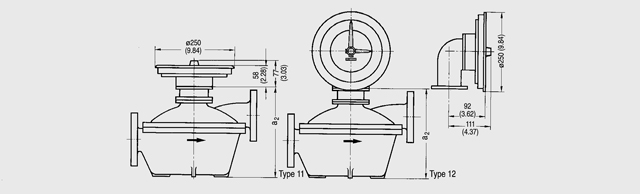
Кольцевой счетчик DN 25 для PN 10 и PN 16 (MWP 145 psi и 232 psi) без доп. модулей, размеры в мм |
|||||||||
|---|---|---|---|---|---|---|---|---|---|
|
с простым стрелочным механизмом типа 01 или с двойным стрелочным механизмом |
|||||||||
|
a1 |
a2 |
a3 |
c |
d1 |
e |
g |
h |
hA |
L |
|
237 (9.33) |
190 (7.48) |
153 (6.02) |
90 (3.54) |
14 (0.55) |
115 (4.53) |
155 (6.10) |
140 (5.51) |
48 (1.89) |
210 (8.27) |
|
с установочным механизмом кол-ва тип 54 |
|||||||||
|
a2 |
a3 |
a5 |
c |
g |
h |
hA |
L |
z |
|
|
190 (7.48) |
153 (6.02) |
440 (17.32) |
90 (3.54) |
155 (6.10) |
140 (5.51) |
48 (1.89) |
210 (8.27) |
54 (2.10) для электрического выключателя |
|
|
Размеры фланцев см. ниже |
|||||||||
Для ступени давления PN 25, PN 40 и PN 63 (MWP 363 psi, 580 psi и 914 psi)
Кольцевой счетчик DN 25 для PN 25, PN 40 и PN 63 MWP 363 psi, 580 psi и 914 psi) с простым стрелочным механизмом или с установочным механизмом кол-ва, размеры в мм (дюймах)
Кольцевой счетчик DN 25 для PN 25, PN 40 и PN 63 (MWP 363 psi, 580 psi и 914 psi) с двойным стрелочным механизмом, размеры в мм (дюймах)
|
Кольцевой счетчик DN 25 (1") для PN 25, PN 40 и PN 63 (MWP 363 psi, 580 psi и 914 psi) без доп. модулей, размеры в мм (дюймах) |
||||||||
|---|---|---|---|---|---|---|---|---|
|
с простым стрелочным механизмом тип 01 или двойным стрелочным механизмом |
||||||||
|
|
a1 |
a2 |
a3 |
c1 |
c2 |
g |
L |
|
|
292 (11.50) |
245 (9.65) |
208 (8.19) |
80 (3.15) |
144 (5.67) |
205 (8.07) |
270 (10.63) |
|
|
308 (12.13) |
261 (10.28) |
224 (8.82) |
82 (3.23) |
157 (6.18) |
230 (9.06) |
300 (11.81) |
|
|
с установочным механизмом кол-ва тип 54 |
||||||||
|
|
a2 |
a3 |
a5 |
c1 |
c2 |
g |
L |
z |
|
245 (9.65) |
208 (8.19) |
495 (19.48) |
80 (3.15) |
144 (5.67) |
205 (8.07) |
270 (10.63) |
54 (2.10) для электрического выключателя |
|
261 (10.28) |
224 (8.82) |
511 (20.12) |
82 (3.23) |
157 (6.18) |
230 (9.06) |
300 (11.81) |
54 (2.10) для электрического выключателя |
|
Размеры фланцев см. ниже |
||||||||
Размеры фланца
Размеры фланца
|
Размеры для фланцев с ровной поверхностью уплотнения |
Доп. размеры для фланцев с уплотнительной планкой |
|||||||
|---|---|---|---|---|---|---|---|---|
|
Заказной номер |
Материал |
Ном. давление |
Ø D |
Ø k |
Ø d2 |
b |
Ø d4 |
f |
|
Размеры для фланцев с отверстиями по EN , 4 финта, диаметр DN 25, размеры в мм |
||||||||
|
E/D/S |
PN 10 |
115 |
85 |
14 |
16 |
68 |
2 |
|
E/D |
PN 25 |
18 |
|||||
|
E/D |
PN 40 |
||||||
|
E/D |
PN 63 |
140 |
100 |
18 |
24 |
||
|
Размеры для фланцев с отверстиями по ASME, 4 винта, диаметр 1", размеры в дюймах |
||||||||
|
E/D/S |
MWP 150 |
41/4 |
31/8 |
5/8 |
16 |
2 |
1/16 |
|
E/D |
MWP 300 ... 600 |
47/8 |
31/2 |
3/4 |
18 |
2 |
1/16 |
|
E/D |
|||||||
|
E/D |
MWP 900 ... 1500 |
57/8 |
4 |
1 |
24 |
2 |
1/4 |
Кольцевой счетчик DN 25 (1") с доп. модулями
Для ступени давления PN 10 и PN 16 (MWP 145 psi и 232 psi)
Кольцевой счетчик DN 25 для PN 10 и PN 16 (MWP 145 psi и 232 psi)с доп. модулями, размеры в мм (дюймах)
|
Кольцевой счетчик DN 25 для PN 10 и PN 16 (MWP 145 psi и 232 psi) с доп. модулями, размеры в мм |
|||||||
|---|---|---|---|---|---|---|---|
|
Тип |
01 |
02 |
03 |
04 |
05 |
06 |
07 |
|
Размер a для кольцевого счетчика с 1 теплоизоляционной вставкой |
|||||||
|
|
349 (13.74) |
272 (10.71) |
430 (16.93) |
272 (10.71) |
430 (16.93) |
354 (13.94) |
513 (20.20) |
|
Размер a для кольцевого счетчика с 2 теплоизоляционными вставками |
|||||||
|
|
508 (20.00) |
- |
590 (23.23) |
- |
590 (23.23) |
- |
672 (23.78) |
Для ступени давления PN 25, 40 и 63 (MWP 363 psi, 580 psi и 914 psi)
Кольцевой счетчик DN 25 для PN 25, PN 40 и PN 63 (MWP 363 psi, 580 psi и 914 psi) с доп. модулями, размеры в мм (дюймах)
|
Кольцевой счетчик DN 25 для PN 25, PN 40 и PN 63 (MWP 363 psi, 580 psi и 914 psi) с доп. модулями, размеры в мм |
|||||||
|---|---|---|---|---|---|---|---|
|
Тип |
01 |
02 |
03 |
04 |
05 |
06 |
07 |
|
Размер a для кольцевого счетчика с 1 теплоизоляционной вставкой |
|||||||
|
404 (15.91) |
327 (12.87) |
486 (19.13) |
327 (12.87) |
486 (19.13) |
409 (16.10) |
568 (22.36) |
|
420 (16.54) |
343 (13.50) |
502 (19.76) |
343 (13.50) |
502 (19.76) |
425 (29.25) |
584 (18.19) |
|
Размер a для кольцевого счетчика с 2 теплоизоляционными вставками |
|||||||
|
563 (22.17) |
- |
645 (25.39) |
- |
645 (25.39) |
- |
727 (28.62) |
|
579 (22.80) |
- |
661 (26.02) |
- |
661 (26.02) |
- |
743 (24.45) |



